Rodgau-Dudenhofen, Quartiersentwicklung
1. Bauabschnitt

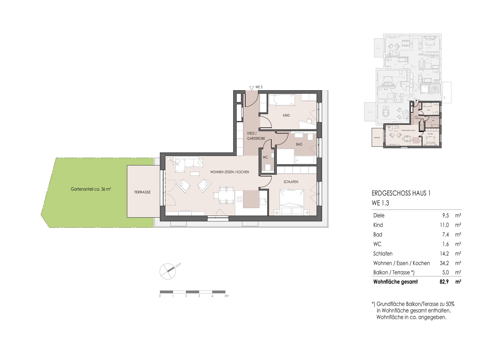
Auf dem Gelände des TSV Dudenhofen entstehen im neu geplanten Wohnquartier fünf Mehrfamilienhäuser mit je elf Wohneinheiten sowie 21 Reihenhäuser und Doppelhaushälften. Das harmonische Ensemble lädt durch die Nähe zum Naherholungsgebiet "An der Gänsbrüh" zu Spaziergängen, sportlicher Betätigung und erholsamen Momenten im Grünen ein. Die Tiefgaragen mit vertikaler Erschließung von der Tiefgarage bis ins Dachgeschoss mittels Aufzug sowie barrierefreie Wohnungen unterstreichen den Wohnkomfort.
Ein vielseitiges Neubauprojekt mit breiter Zielgruppe.
Zusätzlich:
✓ Massivbauweise
✓ Erdwärmepumpe & dezentrale Lüftung mit Wärmerückgewinnung im Geschosswohnungsbau
✓ effiziente Luft-Wasserwärmepumpe bei den Reihenhäusern
✓ Aufzug von der Tiefgarage bis ins Dachgeschoss
✓ Großzügige Balkone, Dachterrassen oder Gartenanteile
✓ Besucherstellplätze und zahlreiche Fahrradstellplätze
Die Reihenhäuser sind als Ausbauhaus mit reduziertem Kaufpreis oder als individueller schlüsselfertiger Neubau erhältlich.